Trinity Academy Replacement – Phase 2

Phase 1 of the Trinity Academy redevelopment (the Sports and Outdoor Centre at Bangholm) was completed in July 2022
Update – January 2026
Phase 2 of the project (redeveloping the main school site for a 1200 student roll) is well underway, with the decant village constructed on the school car park operational from October 2024. The subsequent clearance and demolition of the existing main 1960s tower block building is now complete and construction of the new main build has started. Once the new build has been completed, the remaining existing buildings will be demolished and new landscaping constructed. The existing Victorian block will remain and will be refurbished.


During consultations on the redevelopment, staff, pupils and community felt strongly that the school’s original red sandstone Victorian building on Craighall Road, dating back to 1894, should be retained, refurbished and incorporated into the new design.
The New Trinity Academy

Inside the new building, classroom accommodation will be arranged around a social and dining ‘heart’ which will provide a central point where the school can come together to socialise, learn and collaborate, fostering a sense of community and inclusion. A timber-clad ‘learning stair’ will also connect the school’s main reception space to the ‘heart’. The original Victorian building will link directly to this central space, bringing both buildings together.
Both phases of the project have been designed by Holmes Miller, who have a strong track record of designing Edinburgh schools such as Frogston, Canaan Lane and Victoria Primary Schools.
Designed to meet Passivhaus standards, the new building will aim to reduce energy demand for space heating or cooling, driving down running costs and carbon emissions. It will also meet the Council’s city-wide aspirations for the curriculum to be inclusive, and to meet all digital and outdoor learning requirements.
A carefully considered landscape plan for the school grounds will maximise potential for outdoor learning, encourage sustainability and open up opportunities to support local groups. Features will include an ‘arrival plaza’ with seating and social spaces, an outdoor amphitheatre, a growing space, an outdoor gym and a wellbeing hub garden.
The landscape design creates the opportunity for connections to Trinity Primary, creating an integrated campus. The landscape also incorporates cycle storage and electric vehicle charging in both secure and public areas, encouraging active travel within the City of Edinburgh Council’s sustainable ‘Living Well Locally’ strategy.
The following information provides a summary of the project.

The strategy to develop the main site at Craighall Avenue was agreed at Stage 1. This involves the retention of the Victorian Building (Block A) and the creation of a new, four-storey building to replace the remaining buildings (Blocks B to F).

The new school will provide a more integrated set of accommodation creating more outdoor space at the east side of the site.
Strategic Education Brief
Through the Stage 1 consultation process, a Strategic Education Brief was developed for the new Trinity Academy which reflects the school’s vision for the future and the Council’s wider Learning Estate Principles.
The brief involves the arrangement of traditional departments into faculty-based learning neighbourhoods that span different subjects and encourage collaborative learning across the school. These neighbourhoods are themselves arranged around a central ‘heartspace’ containing whole-school social, dining and assembly spaces. Located between the curriculum neighbourhoods and the central heartspace are flexible learning ‘collaborative and breakout’ areas. This overall arrangement of space is designed to provide a more coherent spatial organisation for the school community, allowing better circulation and opportunities for coming together. This is something which the existing Trinity Academy is sorely lacking due to the disparate set of buildings and poor circulation.

Design

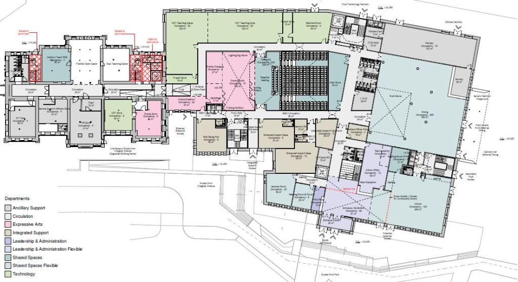
- The ground floor has been developed to accommodate the main spaces which require external access.
- A new main entrance on the south elevation will provide access to the community facing side of the school, including the library and meeting rooms.
- The main dining / social space is located with direct access to additional external dining space to the east.
- Centrally located is the main assembly and theatre space.
- To the south of the assembly space is the Integrated Support area providing a secluded and quiet space with no through traffic and its own external entrance with dedicated garden area

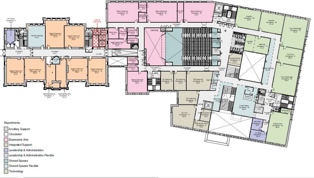
- A flexible area on the first floor links physically and visually with both the main entrance and the dining area on the floor below, as part of the schools ‘heartspace’.
- Drama and Music accommodation is arranged around the double height assembly and theatre space.
- Support for Learning space on the first floor links well with both main subject teaching areas and the Integrated Support spaces on the ground floor.
- Technologies accommodation on the first floor is located above, and links to, associated faculty spaces on the ground floor

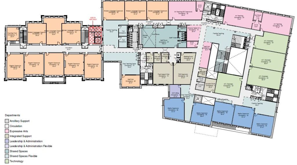
- The second floor accommodates Art, ICT and Maths teaching spaces at the east side of the new building, linking with associated faculty accommodation below.
- Flexible learning space is arranged around the atrium, continuing the ‘heartspace’ element at this level.
- Modern Languages classrooms and flexible learning spaces are provided on the west side of the new building at second floor level, with a direct physical and visual link to associated faculty accommodation within the Victorian building.

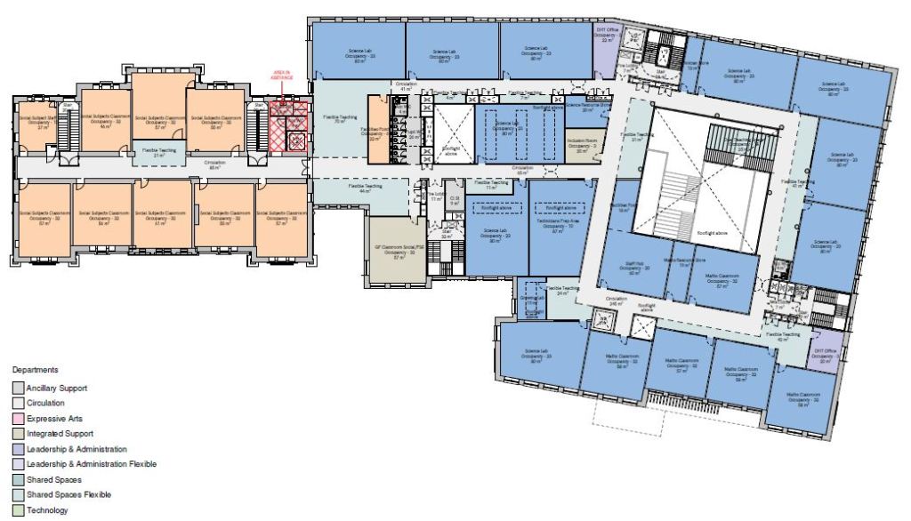
- Science and Maths accommodation is located on the third (top) floor.
- Flexible learning space is arranged around the atrium, continuing the ‘heartspace’ element at this level
- Flexible learning spaces are provided on the west side of the new building at third floor level, with a direct physical and visual link to associated faculty accommodation within the Victorian building.

Landscape Proposals
The project will rationalise the current buildings on the site to create better outdoor space for the school. The landscape architects have proposed that vehicular servicing will be directed to the north of the site, allowing the space at the west, the south and particularly the east, to be better used for outdoor dining and social space, with specific areas for outdoor learning and with facilities to support green travel and sustainability.

Decant
The existing school site is very tight and creating the new school is a complex exercise. The building work and the school are co-existing in close proximity, and the work has been carefully planned to complete in phases and minimise disruption to the school.
Once the new building is completed, the school will be able to move in. At the same time, the school will move out of Block A and into the decant accommodation while Block A (the Victorian building) is refurbished. Once this is achieved and the temporary buildings are removed, the project will be complete – scheduled for August 2028.
Planning Application Submitted October 2023
The archived planning applications for the Trinity Academy Phase 2 project are available online. There is a full planning application, a conservation area application and a listed buildings application. Please see the links below.

